Danh mục Sản phẩm
Thi công lắp rắp
Tin Tức Mới Nhất
Xem video
thông tin-hỗ trợ
Thống kê truy cập
Số người Online : 13
Lượt truy cập : 147601
Truy cập trong ngày : 40
liên hê: Ms Ninh - 0948301299
Nguồn gốc:Reteek.com.vn
Thông tin sản phẩm
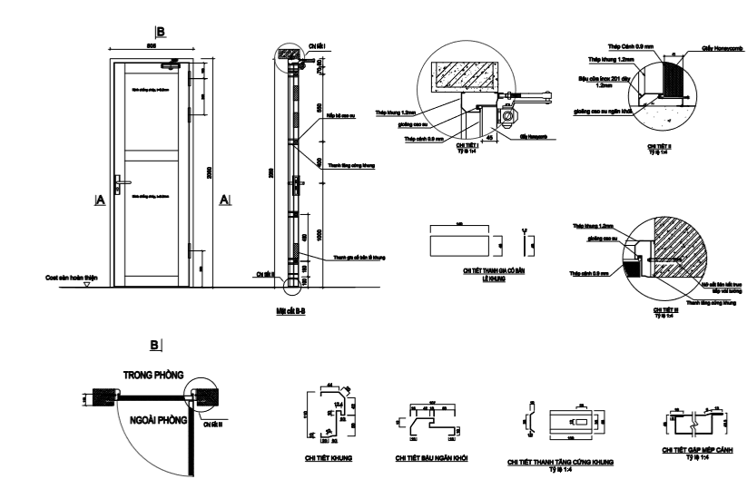
CỬA THÉP CHỐNG CHÁY 90 PHÚT
Cửa thép chống cháy 90 phút
- Kích thước: Sản xuất theo yêu cầu
- Thời gian chống cháy: 90 phút
- Chất liệu: Thép và vật liệu chống cháy
- Cánh cửa: dày 45- 50mm, hai mặt sử dụng thép có độ dày 0.8mm
- Chất liệu chống cháy: Honeycomb paper
- Bản lề Inox: 03 cái/ cánh
- Zoăng cao su ngăn khói
- Màu sơn: Sơn tĩnh điện hoàn thiện
- Phụ kiện: Khóa cửa, tay co thủy lực, thanh thoát hiểm...

